KAPCSOLATFELVÉTEL
Ingatlan jellege
téglalakás
Belső terület
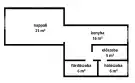
54 m²
Tájolás
nyugat
Építési állapot
használt
Építési mód
tégla
Szobák száma
2 szoba
Szobák elhelyezkedése
külön nyílik min. 2 szoba
Emelet
2.
Épület szintje
2.
Épült
1890
Lift
nincs
Ingatlan állapot
kívül: jó
belül: felújított
Klíma
van
Ablak szerkezete
2 rétegű thermoplan
Fűtés
cirko
Komfort
összkomfort
Parkolás
van fedetlen felszíni beálló
Kilátás
utcára
Energetika
nincs megadva
Borsod-Abaúj-Zemplén megye, Miskolc, Belváros
Irányár
Szobák
Emelet
Terület
A belváros egyik legszebb részén kínálok megvételre egy makulátlan állapotú, teljeskörűen felújított, 2 szobás lakást, amely azonnal költözhető, igényes otthont biztosít új tulajdonosának.
A felújítás során 2018-ban minden vezeték, víz- és gázcső, valamint a gépészet is megújult, míg 2024-ben a társasház teljes tetőszerkezete cserére került, így hosszú távon sem merül fel jelentősebb felújítási igény az amúgy jó állapotú házban.
A lakás berendezése és gépesítése a vételár részét képezi, beleértve a prémium minőségű konyhát, amely AEG páraelszívóval, Electrolux gázfőzőlappal, gőzsütővel és beépített hűtővel felszerelt. Bosch mosógép, Electrolux szárítógép, valamint Bosch kondenzációs kazán, új lapradiátorok és elektromos padlófűtés is a kényelmet szolgálják. A klíma és a riasztórendszer szintén a lakás tartozékai. A gondosan hő- és hangszigetelt nyílászárók, valamint az alacsony, havi 35–40 ezer forintos rezsi még élhetőbbé teszik ezt az otthont.
A lakáshoz tartozik egy 6 m²-es saját tároló, valamint egy zárt udvari parkolóhely, amely a belváros szívében valódi ritkaságnak számít. A második emeleti lakásból hangulatos gangról élvezhető a reggeli kávé, miközben panorámás kilátás nyílik Miskolc belvárosára.
A helyszín tökéletes: a Villanyrendőr, a Szinva terasz, a sétálóutca üzletei, kávézói és éttermei, valamint a színház és a piac mind egy karnyújtásnyira találhatók. A nyugodt, rendezett, háromlakásos társasház biztonságos környezetet kínál, a lakás pedig ideális választás lehet saját otthonnak, hosszútávú kiadásra vagy akár airbnb-nek is.
Amennyiben egy esztétikailag és műszakilag kifogástalan, belvárosi lakást keres ingyenes parkolással és teljes berendezéssel, ne hagyja ki ezt a lehetőséget – hívjon bizalommal, és tekintse meg személyesen!
belül: felújított
Borsod-Abaúj-Zemplén megye, Miskolc, Belváros

+36 20 505 7400
frona.rita@3ingatlan.hu
KAPCSOLATFELVÉTEL
Ingatlan jellege
téglalakás
Belső terület
54 m²
Tájolás
nyugat
Építési állapot
használt
Építési mód
tégla
Szobák száma
2 szoba
Szobák elhelyezkedése
külön nyílik min. 2 szoba
Emelet
2.
Épület szintje
2.
Épült
1890
Lift
nincs
Ingatlan állapot
kívül: jó
belül: felújított
Klíma
van
Ablak szerkezete
2 rétegű thermoplan
Fűtés
cirko
Komfort
összkomfort
Parkolás
van fedetlen felszíni beálló
Kilátás
utcára
Energetika
nincs megadva