KAPCSOLATFELVÉTEL
Ingatlan jellege
téglalakás
Belső terület
110 m²
Tájolás
délnyugat
Építési állapot
használt
Építési mód
tégla
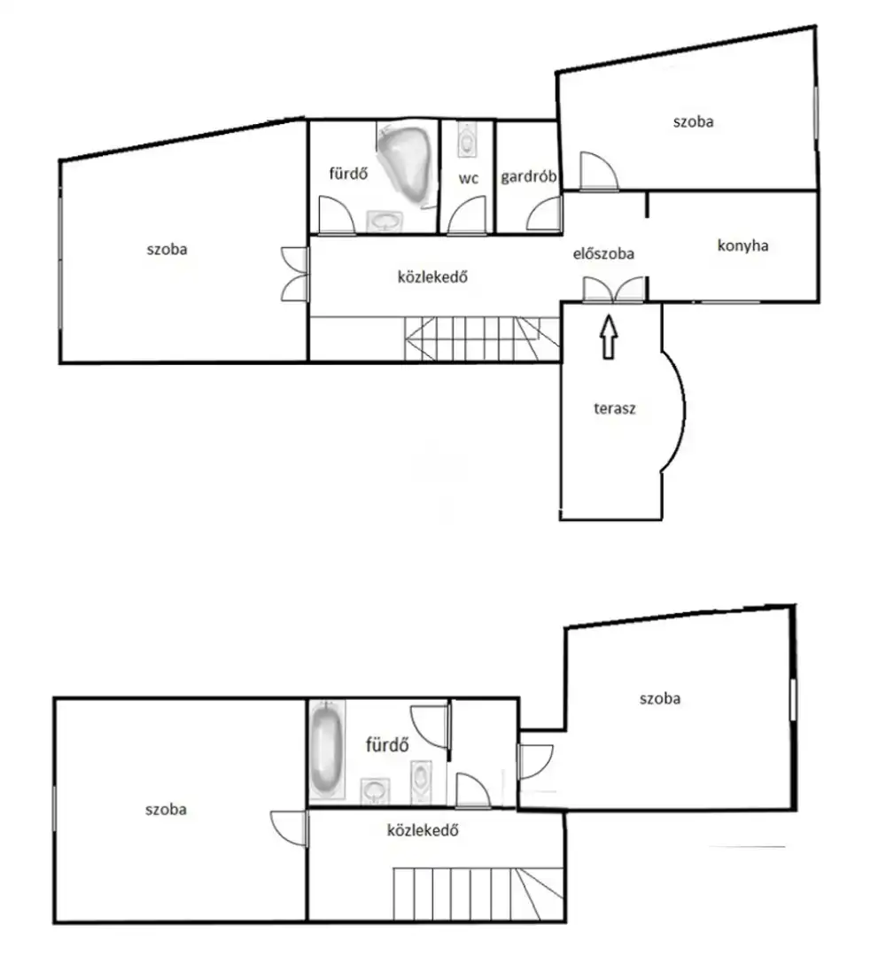
Szobák száma
4 szoba
Emelet
1.
Épület szintje
2.
Épült
1980
Lift
nincs
Ingatlan állapot
kívül: jó
belül: jó
Klíma
van
Szigetelés
10 cm
Ablak szerkezete
hagyományos
Fűtés
cirko
Komfort
duplakomfort
Parkolás
van fedetlen felszíni beálló
Kilátás
utcára
Energetika
nincs megadva
Borsod-Abaúj-Zemplén megye, Miskolc, Belváros
Irányár
Szobák
Emelet
Terület
A modern megjelenésű, tágas lakás elrendezése kiválóan szolgálja egy nagyobb család együttélését is. A nappali világos és barátságos, közvetlen kapcsolatban áll a teljesen felújított, igényes konyhával, amely minőségi beépített bútorokkal és gépekkel felszerelt. Négy külön nyíló szoba, két fürdőszoba, külön WC, gardrób és tágas előtér biztosítja a kényelmes mindennapokat.
A fa nyílászárók hőszigetelt üvegezéssel, a gáz-központi fűtés és a klímaberendezés egyaránt hozzájárulnak a kellemes hőérzethez az év minden időszakában. A bejárat előtt kialakított kis terasz meghitt pihenőhelyet kínál a reggeli kávéhoz vagy az esti kikapcsolódáshoz.
Az ingatlanhoz zárt udvari parkoló és pince is tartozik, az elektromos kapu pedig a kényelmes és biztonságos parkolást teszi lehetővé – ami a belvárosi elhelyezkedés mellett valódi előnyt jelent. A társasház rendezett, lakóközössége igényes és nyugodt.
Ez az ingatlan ideális választás mindazok számára, akik Miskolc szívében keresnek tágas, gondozott, modern otthont, ahol a városi nyüzsgés csak egy karnyújtásnyira van, mégis megőrizhető a mindennapok harmóniája.
belül: jó
Borsod-Abaúj-Zemplén megye, Miskolc, Belváros

+36 20 505 7400
frona.rita@3ingatlan.hu
KAPCSOLATFELVÉTEL
Ingatlan jellege
téglalakás
Belső terület
110 m²
Tájolás
délnyugat
Építési állapot
használt
Építési mód
tégla
Szobák száma
4 szoba
Emelet
1.
Épület szintje
2.
Épült
1980
Lift
nincs
Ingatlan állapot
kívül: jó
belül: jó
Klíma
van
Szigetelés
10 cm
Ablak szerkezete
hagyományos
Fűtés
cirko
Komfort
duplakomfort
Parkolás
van fedetlen felszíni beálló
Kilátás
utcára
Energetika
nincs megadva