Ideális Ingatlan Iroda

KAPCSOLAT
Fróna Rita


+36 20 505

frona.rita@

Az időpont kérés naptár ikonja
IDŐPONTOT KÉREK
A visszahívás kérés telefon ikonja egy azt körbe ölelő nyíllal
VISSZAHÍVÁST KÉREK
Ajánlom egy ismerősömnek ikon
AJÁNLOM EGY ISMERŐSÖMNEK
Facebook megosztás ikon
MEGOSZTÁS

KAPCSOLATFELVÉTEL

Küldés

Az üzenetet sikeresen elküldtük!
Hiba történt!
INGATLAN ADATAI

Ingatlan jellege

téglalakás

Belső terület

58 m²

Tájolás

kelet

Építési állapot

használt

Építési mód

csúsztatott zsalu

Szobák száma

3 szoba

Szobák elhelyezkedése

külön nyílik min. 2 szoba

Erkély

8 m²

Emelet

9.

Épület szintje

10.

Épült

1979

Akadálymentes

igen

Lift

van

Ingatlan állapot

kívül: jó
belül: felújított

Klíma

előkészítve

Szigetelés

5 cm

Ablak szerkezete

2 rétegű thermoplan

Fűtés

gázkonvektor

Komfort

összkomfort

Kilátás

utcára

Energetika

nincs megadva

Az időpont kérés naptár ikonja
HTML
Az időpont kérés naptár ikonja
PDF
Eladó téglalakás
Ingatlan azonosító:
206_idin

Borsod-Abaúj-Zemplén megye, Miskolc

Irányár

35.5 M Ft

Szobák

3 szoba

Emelet

9

Terület

58 m²
INGATLAN LEÍRÁSA
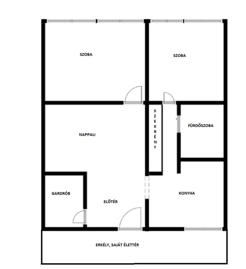
Miskolcon, a MÁV rendelő melletti társasházban eladó egy magas emeleti, panorámás, teljes körűen felújított és átalakított 58 nm-es lakás. Az elmúlt időszakban, a házban több lakás is gazdát cserélt, fiatalok költöznek az épületbe, a környezet rendezett. A közlekedés kiváló, a belváros és a főbb csomópontok gyorsan elérhetők.
Az ingatlan műszaki és esztétikai felújításon esett át: a villany- és vízhálózat megújult, a fürdőszoba átalakításra került, minden burkolat és szaniter új. A meleg vizet gázüzemű bojler biztosítja, a fűtés gázkonvektoros.
Az ablakok műanyag nyílászárókra lettek cserélve, a padlóburkolat laminált parketta. A világos, nagy ablakos konyhaétkezésre is alkalmas, beépített gázfőzőlappal, villanysütővel és szellőzőcsőbe kivezetett szagelszívóval.
Két teljes értékű szoba került kialakításra, így külön nappali is helyet kapott. A lakásból nyílik egy 4 m²-es tároló vagy gardrób helyiség, valamint a lakás része egy 2 méter hosszú, 60 cm mély, felújított beépített gardróbszekrény is. A fürdőszobában zuhanyzó, WC, kézmosó és elektromos törölközőszárító található, a mosógép kiállása megoldott. Klímának az elektromos vezeték kiépítésre került mindkét szobában.
A lakáshoz egy 8 m²-es erkély is tartozik.
A közös költség 13 000 Ft havonta.
Hitelképes, tehermentes ingatlan. Nézze meg, és tegyen ajánlatot!


INGATLAN ADATAI

Ingatlan jellege
téglalakás
Belső terület
58 m²
Tájolás
kelet
Építési állapot
használt
Építési mód
csúsztatott zsalu
Szobák száma
3 szoba
Szobák elhelyezkedése
külön nyílik min. 2 szoba
Erkély
8 m²
Emelet
9.
Épület szintje
10.
Épült
1979
Akadálymentes
igen
Lift
van
Ingatlan állapot
kívül: jó
belül: felújított
Klíma
előkészítve
Szigetelés
5 cm
Ablak szerkezete
2 rétegű thermoplan
Fűtés
gázkonvektor
Komfort
összkomfort
Kilátás
utcára
Energetika
nincs megadva
TÉRKÉP

Borsod-Abaúj-Zemplén megye, Miskolc

KAPCSOLAT
Fróna Rita
Fróna Rita


+36 20 505 7400

frona.rita@3ingatlan.hu

KAPCSOLAT
Fróna Rita

+36 20 505

frona.rita@

Az időpont kérés naptár ikonja
IDŐPONTOT KÉREK
A visszahívás kérés telefon ikonja egy azt körbe ölelő nyíllal
VISSZAHÍVÁST KÉREK
Ajánlom egy ismerősömnek ikon
AJÁNLOM EGY ISMERŐSÖMNEK
Facebook megosztás ikon
MEGOSZTÁS

KAPCSOLATFELVÉTEL

Küldés

Az üzenetet sikeresen elküldtük!
Hiba történt!
INGATLAN ADATAI

Ingatlan jellege

téglalakás

Belső terület

58 m²

Tájolás

kelet

Építési állapot

használt

Építési mód

csúsztatott zsalu

Szobák száma

3 szoba

Szobák elhelyezkedése

külön nyílik min. 2 szoba

Erkély

8 m²

Emelet

9.

Épület szintje

10.

Épült

1979

Lift

van

Ingatlan állapot

kívül: jó
belül: felújított

Klíma

előkészítve

Szigetelés

5 cm

Ablak szerkezete

2 rétegű thermoplan

Fűtés

gázkonvektor

Komfort

összkomfort

Kilátás

utcára

Energetika

nincs megadva

Az időpont kérés naptár ikonja
HTML
Az időpont kérés naptár ikonja
PDF
Borsod-Abaúj-Zemplén megye - Miskolc
Borsod-Abaúj-Zemplén megye - Miskolc
Borsod-Abaúj-Zemplén megye - Miskolc
Borsod-Abaúj-Zemplén megye - Miskolc
Borsod-Abaúj-Zemplén megye - Miskolc
Borsod-Abaúj-Zemplén megye - Miskolc
Borsod-Abaúj-Zemplén megye - Miskolc
Borsod-Abaúj-Zemplén megye - Miskolc
Borsod-Abaúj-Zemplén megye - Miskolc
Borsod-Abaúj-Zemplén megye - Miskolc
Borsod-Abaúj-Zemplén megye - Miskolc
Borsod-Abaúj-Zemplén megye - Miskolc
Borsod-Abaúj-Zemplén megye - Miskolc
Borsod-Abaúj-Zemplén megye - Miskolc
Borsod-Abaúj-Zemplén megye - Miskolc
Borsod-Abaúj-Zemplén megye - Miskolc
Borsod-Abaúj-Zemplén megye - Miskolc