Ideális Ingatlan Iroda

KAPCSOLAT
Fróna Rita


+36 20 505

frona.rita@

Az időpont kérés naptár ikonja
IDŐPONTOT KÉREK
A visszahívás kérés telefon ikonja egy azt körbe ölelő nyíllal
VISSZAHÍVÁST KÉREK
Ajánlom egy ismerősömnek ikon
AJÁNLOM EGY ISMERŐSÖMNEK
Facebook megosztás ikon
MEGOSZTÁS

KAPCSOLATFELVÉTEL

Küldés

Az üzenetet sikeresen elküldtük!
Hiba történt!
INGATLAN ADATAI

Ingatlan jellege

téglalakás

Belső terület

116 m²

Tájolás

kelet, nyugat

Építési állapot

használt

Építési mód

csúsztatott zsalu

Szobák száma

6 szoba

Erkély

8 m²

Emelet

9.

Épület szintje

10.

Épült

1979

Lift

van

Ingatlan állapot

kívül: jó
belül: felújított

Szigetelés

5 cm

Ablak szerkezete

2 rétegű thermoplan

Fűtés

gázkonvektor

Komfort

összkomfort

Kilátás

utcára

Energetika

nincs megadva

Az időpont kérés naptár ikonja
HTML
Az időpont kérés naptár ikonja
PDF
Eladó téglalakás
Ingatlan azonosító:
207_idin

Borsod-Abaúj-Zemplén megye, Miskolc

Irányár

69.9 M Ft

Szobák

6 szoba

Emelet

9

Terület

116 m²
INGATLAN LEÍRÁSA
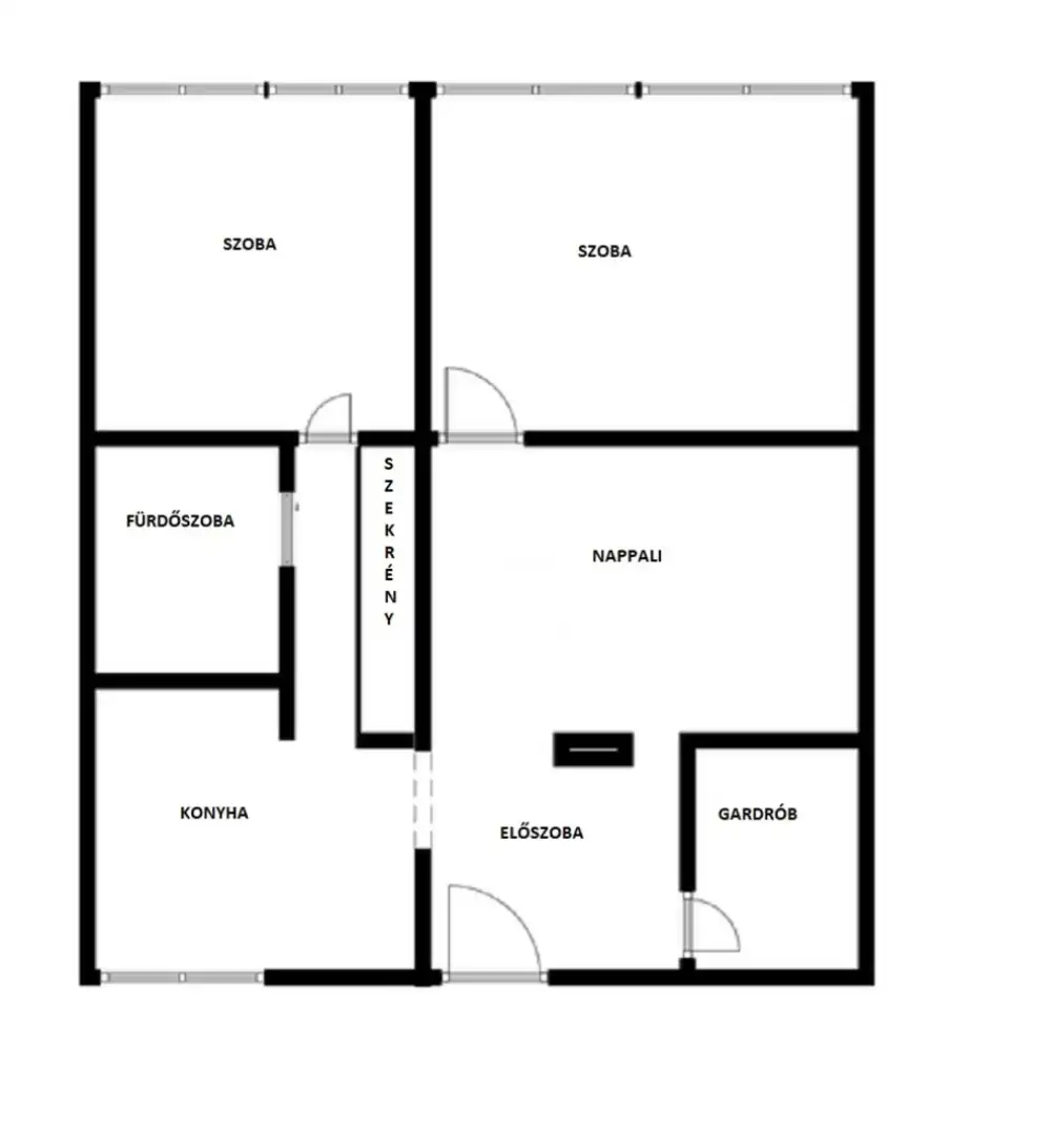
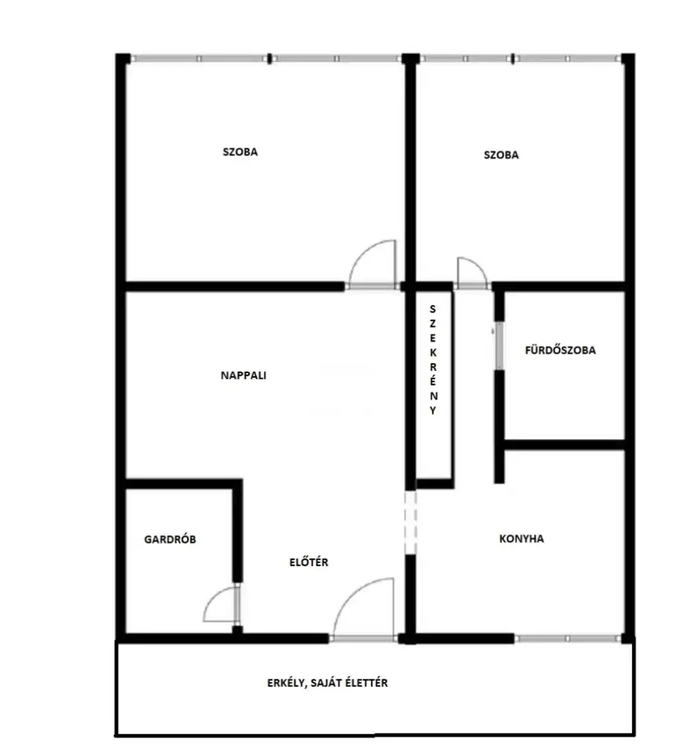
Befektetőknek, illetve együtt, mégis külön költözőknek ideális lehetőség Miskolcon. A MÁV rendelő melletti épület 9. emeletén eladó két, azonos szinten elhelyezkedő, de nem egymás melletti lakás. Mindkét ingatlan 58 m²-es, teljes körűen felújított és átalakított, nappali és két szoba elosztással. A konyhák étkezős kialakításúak, nagy ablakosak, a szobák naposak, világosak. Az eredeti beépített gardróbszekrények felújítva rendelkezésre állnak, valamint lakásonként egy külön 4 m²-es tároló/gardrób is tartozik az ingatlanokhoz.
Az egyik lakás városi panorámával rendelkezik, a másikból a Tokaj-hegyig ellátni, ehhez a lakáshoz tartozik egy 8 nm-es erkély. Az erkélyes lakásban a meleg vizet gázüzemű bojler biztosítja, a fűtésről gázkonvektor gondoskodik. A másik lakásban Ariston márkájú villanybojler található, a fűtés itt is gázkonvektorral megoldott. Mindkét lakásban a villany- és vízhálózat felújításra került, az ablakok cseréje megtörtént.
A lakásokban laminált padló burkolat került lerakásra, a fürdőszobákban mészkő mintájú csempe, fiatalos fekete szaniterek és zuhanyzó lett beépítve. A mosógép kiállás kiépítésre került. A konyhákban gázfőzőlap, villanysütő, szellőzőcsőbe kötött szagelszívó, valamint a hűtő számára kialakított hely található.
A környék közlekedése kiváló, a társasház rendezett, egyre több fiatal tulajdonossal. Az ingatlanok tehermentesek és hitelképesek. Jöjjön el, nézze meg, és tegyen ajánlatot.
A lakások külön is eladók!

INGATLAN ADATAI

Ingatlan jellege
téglalakás
Belső terület
116 m²
Tájolás
kelet, nyugat
Építési állapot
használt
Építési mód
csúsztatott zsalu
Szobák száma
6 szoba
Erkély
8 m²
Emelet
9.
Épület szintje
10.
Épült
1979
Lift
van
Ingatlan állapot
kívül: jó
belül: felújított
Szigetelés
5 cm
Ablak szerkezete
2 rétegű thermoplan
Fűtés
gázkonvektor
Komfort
összkomfort
Kilátás
utcára
Energetika
nincs megadva
TÉRKÉP

Borsod-Abaúj-Zemplén megye, Miskolc

KAPCSOLAT
Fróna Rita
Fróna Rita


+36 20 505 7400

frona.rita@3ingatlan.hu

KAPCSOLAT
Fróna Rita

+36 20 505

frona.rita@

Az időpont kérés naptár ikonja
IDŐPONTOT KÉREK
A visszahívás kérés telefon ikonja egy azt körbe ölelő nyíllal
VISSZAHÍVÁST KÉREK
Ajánlom egy ismerősömnek ikon
AJÁNLOM EGY ISMERŐSÖMNEK
Facebook megosztás ikon
MEGOSZTÁS

KAPCSOLATFELVÉTEL

Küldés

Az üzenetet sikeresen elküldtük!
Hiba történt!
INGATLAN ADATAI

Ingatlan jellege

téglalakás

Belső terület

116 m²

Tájolás

kelet, nyugat

Építési állapot

használt

Építési mód

csúsztatott zsalu

Szobák száma

6 szoba

Erkély

8 m²

Emelet

9.

Épület szintje

10.

Épült

1979

Lift

van

Ingatlan állapot

kívül: jó
belül: felújított

Szigetelés

5 cm

Ablak szerkezete

2 rétegű thermoplan

Fűtés

gázkonvektor

Komfort

összkomfort

Kilátás

utcára

Energetika

nincs megadva

Az időpont kérés naptár ikonja
HTML
Az időpont kérés naptár ikonja
PDF
Borsod-Abaúj-Zemplén megye - Miskolc
Borsod-Abaúj-Zemplén megye - Miskolc
Borsod-Abaúj-Zemplén megye - Miskolc
Borsod-Abaúj-Zemplén megye - Miskolc
Borsod-Abaúj-Zemplén megye - Miskolc
Borsod-Abaúj-Zemplén megye - Miskolc
Borsod-Abaúj-Zemplén megye - Miskolc
Borsod-Abaúj-Zemplén megye - Miskolc
Borsod-Abaúj-Zemplén megye - Miskolc
Borsod-Abaúj-Zemplén megye - Miskolc
Borsod-Abaúj-Zemplén megye - Miskolc
Borsod-Abaúj-Zemplén megye - Miskolc
Borsod-Abaúj-Zemplén megye - Miskolc
Borsod-Abaúj-Zemplén megye - Miskolc
Borsod-Abaúj-Zemplén megye - Miskolc
Borsod-Abaúj-Zemplén megye - Miskolc
Borsod-Abaúj-Zemplén megye - Miskolc
Borsod-Abaúj-Zemplén megye - Miskolc
Borsod-Abaúj-Zemplén megye - Miskolc
Borsod-Abaúj-Zemplén megye - Miskolc
Borsod-Abaúj-Zemplén megye - Miskolc
Borsod-Abaúj-Zemplén megye - Miskolc
Borsod-Abaúj-Zemplén megye - Miskolc